生活にとても便利な場所で築浅のお家です♪間接照明でオシャレなLDKや2階にはロフトが2つあり収納場所にも困りません!


生活にとても便利な場所で築浅のお家です♪間接照明でオシャレなLDKや2階にはロフトが2つあり収納場所にも困りません!


| 価格 | 3280万円 |
|---|---|
| 物件所在地 | 亀岡市下矢田町3丁目 |
| 地図 | https://maps.app.goo.gl/8dfeKbxwR1By79we9 |
| 建物構造 | 木造スレート葺2階建 |
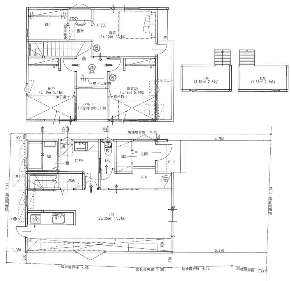
| 間取り | 3SLDK |
| 築 | 2022年02月 築 |
| 建物面積 | 90.00㎡ |
| 交通状況 | JR山陰本線 亀岡 徒歩19分 |
| 土地面積 | 公簿 105.92㎡ (32.04坪) |
| 設備等 | オール電化 24時間換気システム オートバス バス1坪以上 追焚機能 カウンターキッチン クローゼット ウォークインクローゼット 間接照明 電気 上水道 下水道 エアコン モニタ付インターホン ディンプルキー 駐車場2台分 駐車場3台分以上 |
| 現状 | 所有者居住中 |
| オススメポイント | 生活にとても便利な場所で築浅のお家です♪間接照明でオシャレなLDKや2階にはロフトが2つあり収納場所にも困りません! |
| 備考 | 現状有姿公簿取引 契約不適合責任免責 |
| 入居可能予定日 | 相談 |
| 情報更新日 | 2025/12 |